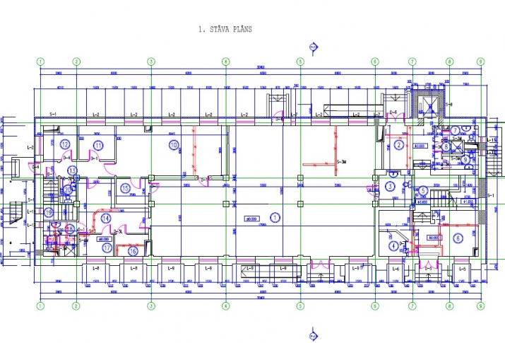
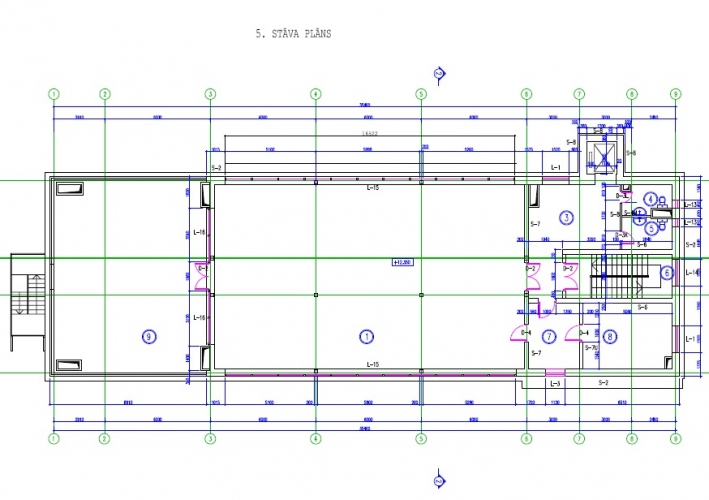
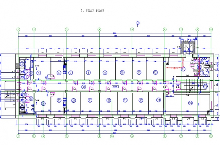
A reconstructed 5-storey administrative building is for sale in Jaunciems. Price: EUR 190,000 + VAT. The building can be used for retail and office purposes or converted into a dormitory/hostel. Basement under part of the building: 157 sq.m. On the 1st floor it is possible to create retail premises. Floors 24 consist of small offices or rooms. The 5th floor has a large hall and a spacious roof terrace. Floor area: approx. 335 sq.m. per floor. Ceiling height: basement 2.10 m, 1st floor 3.45 m, other floors 3.0 m. Utilities and amenities: - Elevator shaft - Central heating - Electricity supply - Cold water supply - Sewerage The building was originally constructed during the Soviet period as a 2-storey structure. The first floor housed a canteen, the second floor offices. In 2006, reconstruction works were started, resulting in the addition of 3 more floors. The reconstruction in its current form was carried out illegally and exceeds all permitted building parameters. The existing reconstruction cannot be approved. There is an old project for a version of reconstruction that could be approved (architect V. Briedis), but it has not been approved by the Building Authority. Partial demolition of the building would be required. At present, the building is abandoned and in poor condition. There is a small land plot around the building, with limited space for parking. A public transport stop is located near the property. Mixed-use central development area (JC1). Main permitted land uses: - Apartment building development (11006) - Office building development (12001) - Retail or service facility development (12002)
Телефон:29476228E-mail:Адрес в интернетеПросмотров:10 Публикуется:27.04.2026 — 21.05.2026 Объявление было принято через Интернет
Без приоритета Не выделено |







