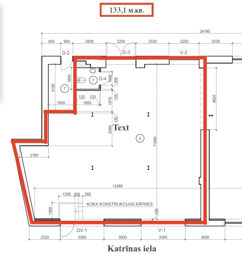
Новые, просторные и современные помещения в Тихом центре Предлагаются в аренду современные и стильные торговые помещения в полностью реновированном фасадном здании с развитой инфраструктурой и удобным доступом. Помещения подходят для различных видов коммерческой деятельности ресторана, торгового салона, архитектурного бюро или других услуг. Описание помещений: Просторные и светлые помещения с высокими потолками; Вход с фасадной стороны здания и отдельные ворота в угловой части; Стильный интерьер с элементами из дерева и кирпича; Ровные бетонные полы; Обустроен санузел; Установлена принудительная вентиляционная система. Помещения можно адаптировать под ресторан, с возможностью установки дополнительной вентиляции. Помещения расположены в удобном и легко доступном месте, недалеко от центра города и в окружении престижной, тихой застройки. Арендная ставка указана за помещения в текущем состоянии. Эти помещения готовы стать пространством для развития вашего бизнеса будь то ресторан, сервисный центр или креативный офис. Отличный выбор для компаний, которые ценят современную архитектуру, стиль и престижное расположение в Тихом центре!
Телефон:26066065E-mail:Адрес в интернетеПросмотров:5 Публикуется:21.10.2025 — 30.01.2026 Объявление было принято через Интернет
Без приоритета Не выделено |






