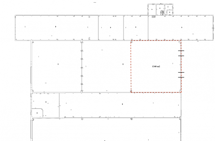
Складские / производственные помещения с высокими потолками и естественным освещением. + Удобный доступ для крупногабаритного транспорта; + Двое подъёмных ворот (4,8 x 3,6 м); + Высота потолков 11 м; + Ровные бетонные полы в отличном состоянии (толщина 25 см); + Естественное освещение для экономии на электричестве и + отоплении; + Доступен газ; + Асфальтированные наружные площадки различных размеров. Общая площадь склада состоит из открытых купол без перегородок и колонн.
Телефон:26400759E-mail:Адрес в интернетеПросмотров:2 Публикуется:05.11.2024 — 30.01.2026 Объявление было принято через Интернет
Без приоритета Не выделено |








