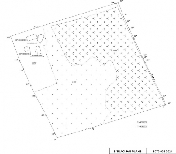
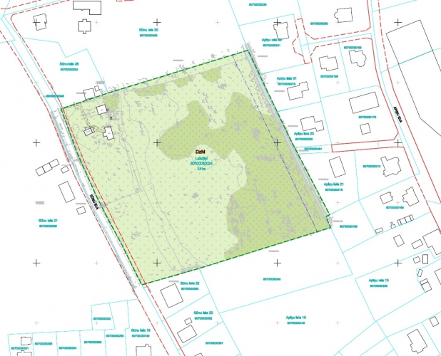
Zeme 18 privātmāju ciematam ar detālplānojumu. Pārdota tiek 1/2 no šī zemes gabala (13 242,5 kvm) jeb 9 apbūves gabali. Zemes gabala kopējā platība 26 485 kvm. Detālplānojums tika pabeigts un saskaņots 2024.gada augustā. Vienīgais zemes apgrūtinājums - ūdensnotekas (Bišumuižas grāvis gar ZA robežu) 0,1632 ha. To iespējams izveidot par skaistu upīti. Vēl uz zemes atrodas 2 vecās ēkas, kas paredzētas nojaukšanai. Komunikācijas: - elektrība un gāze pieejama uz Sūnu ielas; - ūdens no Rīgas ūdens pieejams 200-300 m attālumā; - kanalizācija jābūvē vietējā. Īpašumam ir perfekta lokācija - tas atrodas klusā vietā, bet tajā pašā laikā 5 min gājiena attālumā ir TC A7 ar Rimi, kafejnīcām un citiem veikaliem. Līdz Vecrīgai 13 min brauciens ar auto. Mazstāvu dzīvojamās apbūves teritorija (DzM1). Apbūves parametri: - minimālā jaunizveidojamā zemes gabala platība 1200 m2; - maksimālais apbūves blīvums 35 %; - apbūves intensitāte nenosaka; - apbūves augstums 3 stāvi (3. stāva platība nedrīkst būt lielāka par 66 % no 2. stāva platības), līdz 12 metriem; - minimālais brīvās zaļās teritorijas rādītājs 50 %. Citi noteikumi: - minimālā zemes vienības fronte 15 m; - būvlaide gar vietējās nozīmes ielu (E kategoriju) 3 m no ielu sarkano līniju teritorijas. Īpašumu iespējams iegādāties arī uz nomaksu jeb ar samaksu pēc ciemata uzbūvēšanas un pārdošanas.
Tālrunis:29476228E-mail:Adrese internetāSkatīšanas reizes:2 Tiek publicēts:22.10.2024. — 29.01.2026. Sludinājums tika pieņemts Internetā
Bez prioritātes Nav izcelts |









