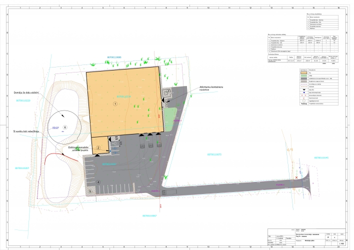
Tiek piedāvāts komerciālās apbūves zemesgabals Lielvāržos! Zemesgabals ar kopējo platību 7360m2, kurš sastāv no diviem blakus esošiem zemesgabaliem ar platībam 3860m2 un 3500m2. Īpašums atrodas blakus A7 un P89 krustojumam, kuru plāno pārbūvēt par apļveida krustojumu ar atsevišķu nobrauktuvi uz īpašumu. Sadales tīklu 05.01.22. aprēķinātās 40A elektropieslēguma ierīkošanas izmaksas - 1623 eiro. -Uz īpašuma ir ierīkots dīķis. Uz īpašuma Ir iespējams pieslēgites gāzei (VSP2), gar autoceļu (A7) iet elektrība un TET optiskais internets. Ūdens un kanalizācija jāveido pašiem. Īpašums atrodas Jaukats ražošanas un darījumu teritorijas (JRD), kur galvenais izmantošanas veids ir rožošanas, komunālie, noliktavu un transporta uzņēmumi, taču ir atļauti arī tirdzniecības vai pakalpojumu objekti. Apbūves noteikumi: Jaunveidojamā zemes gabala platība - 1200m2 Maksimāla apbūves intensitāte - 150% Minimālā brīvā teritorija - 10% Maksimālais dzīvojamās mājas augstums - kopā 20m (netiek ieskaitīti skursteņi, silosi utml.) Droši zvaniet! Ar prieku sniegšu sīkāku informāciju un atbildēšu uz jūsu jautājumiem.
Tālrunis:27813961E-mail:Adrese internetāSkatīšanas reizes:2 Tiek publicēts:04.10.2023. — 29.01.2026. Sludinājums tika pieņemts Internetā
Bez prioritātes Nav izcelts |









