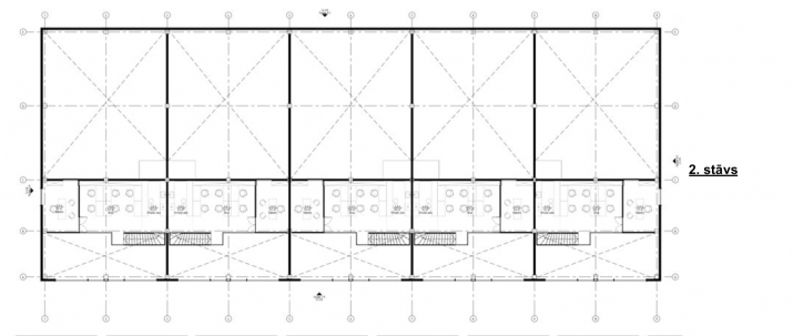
Zemes gabals Pie Kārļa Ulmaņa gatves. + Zemes gabals 5518 m2 platībā Jauktas centra apbūves teritorijā (JC2); + pieejamas pilsētas komunikācijas; + blakus Jūrmalas šoseja un autobusa pietura, veikali Orange Cash and Carry, Sky, K Senukai. Skiču projekts uz ēkua 1727 m2 platībā; + Pieci biroju/veikala/noliktavu bloki, katrs ar kopējo platību ap 342 m2 (STOCK OFFICE); + 1. stāvā paredzētas veikala, biroja, noliktavas telpas (griestu augstums 8.7 m) un sanmezgls; + 2. stāvā birojs, virtuve. + 29 autostāvvietas.
Tālrunis:26400759E-mail:Adrese internetāSkatīšanas reizes:3 Tiek publicēts:16.05.2025. — 29.01.2026. Sludinājums tika pieņemts Internetā
Bez prioritātes Nav izcelts |







