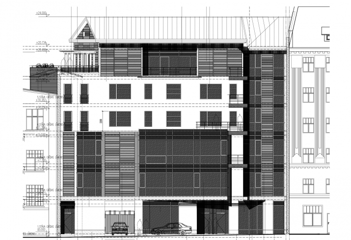
Zemes gabals Centrā. Zemes gabals 1103,15 m2; Jaukta apbūve ar dzīvojamo funkciju; 2005. gada projekts dzīvokļu ēkas būvniecībai (izsniegta būvatļauja, kurai beidzies termiņš); GBA - 2287,5 m2; 6 stāvi un pagrabstāvs; GLA- 1600 m2; 18 dzīvokļi, 2 biroji, divas tirdzniecības telpas; 15 stāvvietas; 18 palīgtelpas pagrabā; 4 terases; Veikta 0 cikla izbūve, daļēji iesākta ēkas būvniecība, izbetonēta garāža;
Tālrunis:29888555E-mail:Adrese internetāSkatīšanas reizes:3 Tiek publicēts:02.04.2024. — 30.01.2026. Sludinājums tika pieņemts Internetā
Bez prioritātes Nav izcelts |





