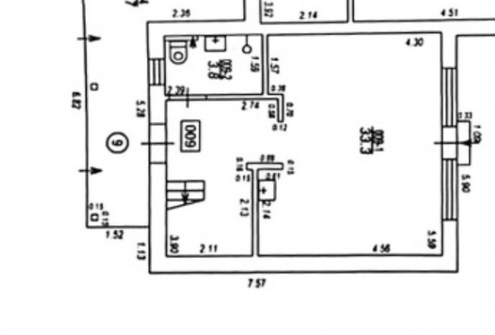
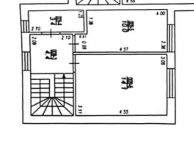
"TOWNHOUSE" PROJEKTS Ķemeru iela 60, Dzintari, Jūrmala Piedāvājumā 2-stāvu dzīvoklis prestižajā Dzintaru rajonā tikai 15 minūtes līdz Jomas ielai, Dzintaru parkam un pludmalei! Dzīvojumā platība: 71 m + terase 14 m Plānojums: 1. stāvs: viesistaba kopā ar virtuves zonu un plāsiem panorāmas logiem ar izeju uz terasi, vannas istaba 2. stāvs: 2 guļamistabas + (garderobe/saimniecības telpa) Siltās grīdas, videonovērošana, elektriskie vārti, apzaļumota teritorija Komunikācijas: centrālā gāzes apkure, ūdens boileris, skaitītāji Cenā iekļauta autostāvvieta Komunālie maksājumi tikai 140 €/mēn, viss iekļauts! Ideāla Atrašanās vieta starp jūru un Lielupi miers, daba un pilsētas ērtības vienuviet!
Tālrunis:26224063E-mail:Adrese internetāSkatīšanas reizes:2 Tiek publicēts:11.12.2025. — 30.01.2026. Sludinājums tika pieņemts Internetā
Bez prioritātes Nav izcelts |









