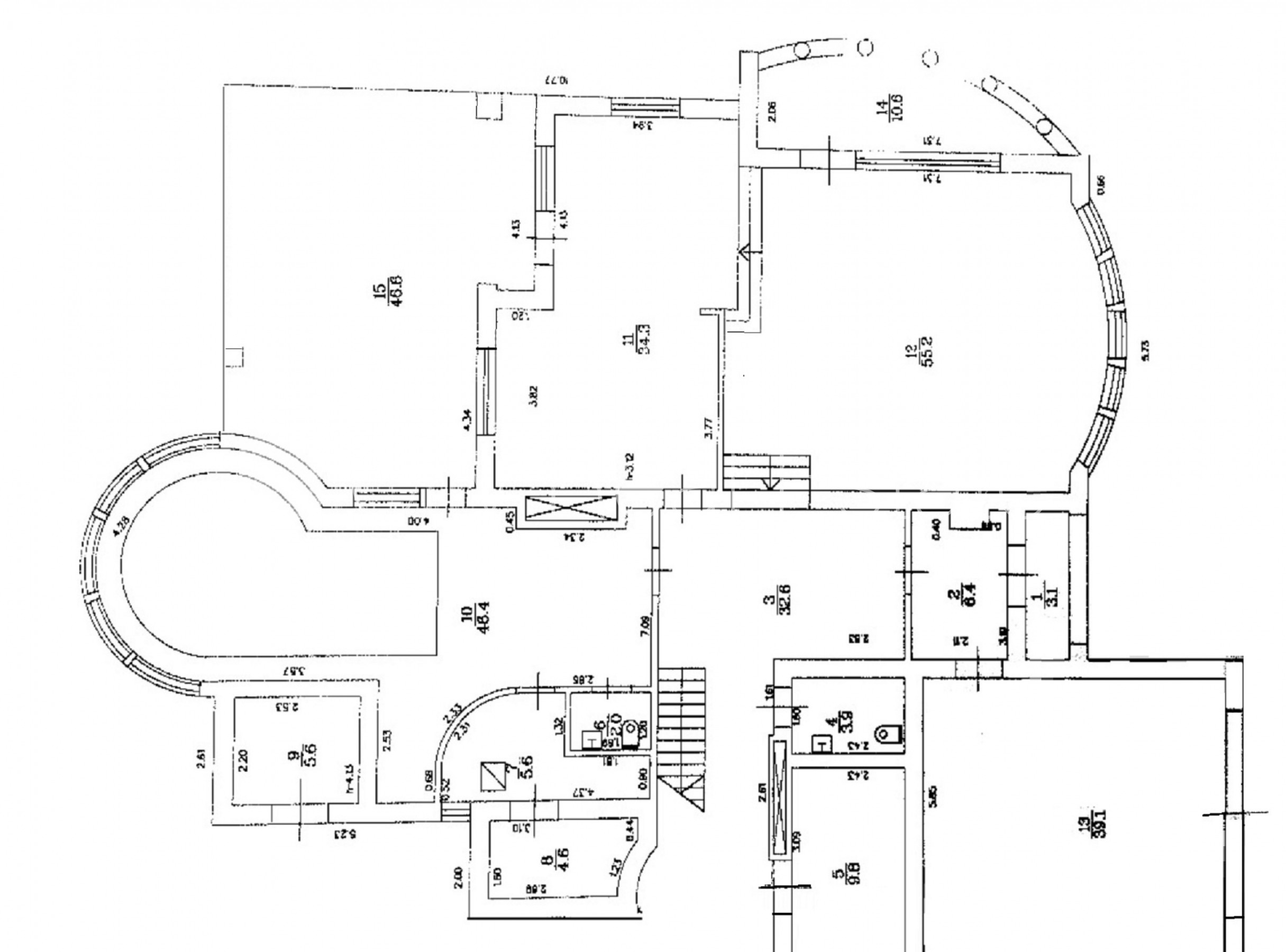
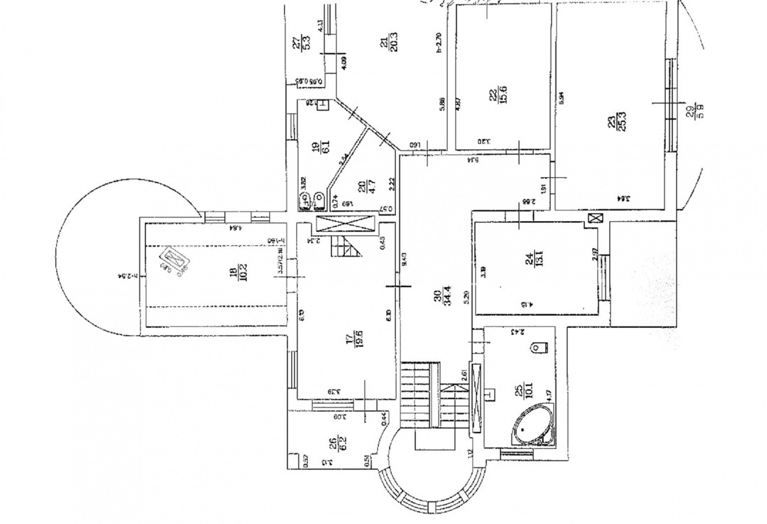
Privātmāja, jaunceltne, labiekārtota apzaļumota teritorija 2460 m2, iežogota teritorija ar metāla sētu, teritorijas iebrauktuves vārti aprīkoti ar automatizētu atvēršanās un aizvēršanās sistēmu, garāža divām automašīnām, vieta vairākām automašīnām, apsargāta teritorija, apzaļumota teritorija ar jaunu kokaugu stādījumiem, teritorijas stāvlaukums noklāts ar bruģakmens segumu, luksuss apartamenti , balkons, divas terases, baseins, sauna, guļamistabu skaits 4 gab., viesistaba, studio tipa, virtuve apvienota ar istabu, kabinets, palīgtelpa, kamīns, gāzes apkure, gaisa kondicionieris ar siltuma funkciju, uzstādīti saules paneļi, pilnā apdare, apsildāma grīda mājas pirmajā stāvā, lielie skatlogi, parketa grīda, trīs sanitārie mezgli, vanna, dušas kabīne, džakūzī vanna, iebūvēta virtuves iekārta, iebūvēti sienas skapji, gaisa kondicionieris, televizors, ledusskapis, trauku mazgājamā mašīna, cepeškrāsns, gāzes plīts, kafijas automāts, mikroviļņu krāsns, veļas mašīna, internets, iekšējā un perimetra signalizācijas sistēma, diennakts videonovērošana, atbrīvots, stratēģiski izdevīga vieta, CITY REAL ESTATE ID - 517338
Papildus informācija: http://www.cityreal.lv/nekustamais-ipasums/op/517338
























