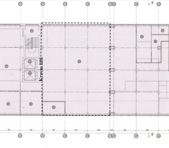
Plašas ražošanas telpas Ziepniekkalnā. + teritorijas zonējums ar ražotnes statusu (R); + telpu grupa 1251 (ražotnes telpu grupa); + gāzes apkure; + pieejama 3-fāžu elektrība; + pilsētas ūdens un kanlizācija; + flīzētas grīdas un sienas; + iebūvēta palīgtelpa (birojam, atpūtas telpai, garderobēm); + plaši logi dabīgajam apgaismojumam; + griestu augstums ap 4.2m; + kravas lifts (3t) pienāk tieši stāvā. Nomas maksa 4.50 EUR/m2. Apsaimniekošana 0.80 EUR/m2. Apsardze 0.59 EUR/m2. NĪN 0.63 EUR/m2. Elektroenerģijas patē iņš pēc skaitītājiem. Iežogota, asfaltēta un apsargāta teritorija. Stāvvietu iespējas uz ielas vai iekšējā teritorijā. Iebraukšana teritorijā caur lielajiem transporta vārtiem. Dzīvā apsardze + videonovērošanas režīms 00-24.
Tālrunis:26066065E-mail:Adrese internetāSkatīšanas reizes:4 Tiek publicēts:24.10.2025. — 22.05.2026. Sludinājums tika pieņemts Internetā
Bez prioritātes Nav izcelts |









