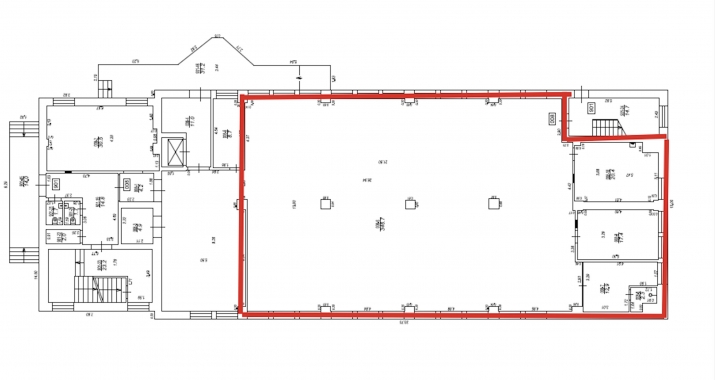
Izīrē modernas biroja telpas Mūkusalas Biznesa Centrā Piedāvājam plašas un mūsdienīgas biroja telpas pirmajā stāvā biznesa centrā Mūkusalas centrā, vien dažu minūšu attālumā no Latvijas Nacionālās bibliotēkas un Vecrīgas. Telpās ir ūdens un kanalizācijas pieslēgums. Nomas maksa tiks norādīta pēc remontdarbu pabeigšanas. Priekšrocības: Reprezentatīva un strauji attīstoša apkārtne pie Daugavas; Ērta piekļuve ar sabiedrisko un privāto transportu; Tiešā tuvumā tirdzniecības centrs Riga Plaza, kafejnīcas, veikali, medicīnas centrs u.c. pakalpojumi; Labiekārtota promenāde gar Daugavu ar pontoniem, skatu laukumu un atpūtas zonām; Plānota jauna piestātne, kas palielinās īpašuma vērtību. Mūkusalas Biznesa Centra ērtības: Plaša autostāvvieta; Diennakts apsardze un videonovērošana; Velosipēdu novietnes; Kafejnīca, aptieka un sporta zāle teritorijā; Zaļa un sakopta vide; Lielākā saules paneļu stacija Rīgā; Iespēja pielāgot telpas klienta vajadzībām. Telpas ir lieliski piemērotas uzņēmumiem, kas augstu vērtē pieejamību, attīstītu infrastruktūru un reprezentatīvu vidi.
Tālrunis:26066065E-mail:Adrese internetāSkatīšanas reizes:3 Tiek publicēts:16.12.2025. — 29.01.2026. Sludinājums tika pieņemts Internetā
Bez prioritātes Nav izcelts |









