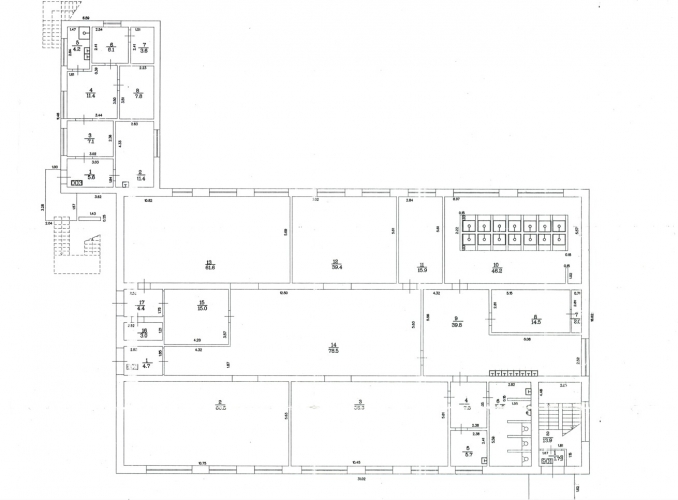
Pieejamas noliktavas/ražošanas telpas labā lokācijā un par izdevīgu cenu. Telpas ir pielāgojamas jūsu vajadzībām. Kopējā platība 1088,2 kvm. Pieejama elektrība un ūdens. Nav apkures katla, taču telpās ir radiatori nepieciešams tikai uzstādīt katlu. Droši zvaniet, ja ir kādi jautājumi vai vēlāties apskatīt telpas.
Tālrunis:26224063E-mail:Adrese internetāSkatīšanas reizes:1 Tiek publicēts:01.01.1970. — 29.01.2026. Sludinājums tika pieņemts Internetā
Bez prioritātes Nav izcelts |









