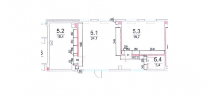
Kvalitatīvas biroja telpas Duntes biroju centrā. + Pilnībā autonoms birojs ar trīs kabinetiem (diviem slēgtiem) + pie ēkas autostāvvietas; + telpas ir aprīkotas ar visām komunikācijām, ventilāciju, kondicionēšanas sistēmu, optiskais internets; + tiek nodrošināta 24/7 apsardze; + blakus sabiedriskā transporta pieturas ar ērtu nokļūšanas iespēju. + ēkā atrodas kafejnīca.
Tālrunis:26400759E-mail:Adrese internetāSkatīšanas reizes:1 Tiek publicēts:01.01.1970. — 30.01.2026. Sludinājums tika pieņemts Internetā
Bez prioritātes Nav izcelts |









