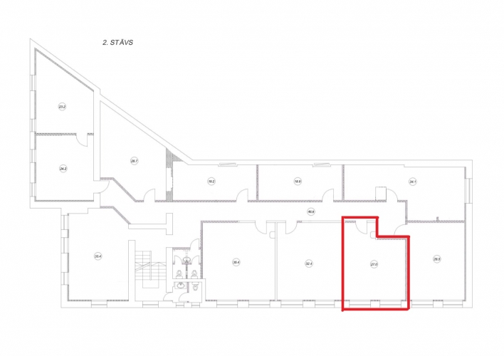
Piedāvājumā biroja telpas Brasā, Starta iela 1. + Kopējā platība 27 m2; + 2. stāvs; + Ap ēku bezmaksas autostāvvieta; + Centrālā apkure; + Elektrība; + Internets; + Wc; + Signalizācija; + Blakus ēka kafejnīca. Nomas maksa Eur 4/m2 + komunālie maksājumi + apsaimniekošana + PVN 21%. Ērta sabiedriskā transporta plūsma (autobusi, tramvajs, vilciens, trolejbusi). Droši zvaniet un sniegšu sīkāku informāciju!
Tālrunis:29476228E-mail:Adrese internetāSkatīšanas reizes:4 Tiek publicēts:23.10.2024. — 22.05.2026. Sludinājums tika pieņemts Internetā
Bez prioritātes Nav izcelts |





