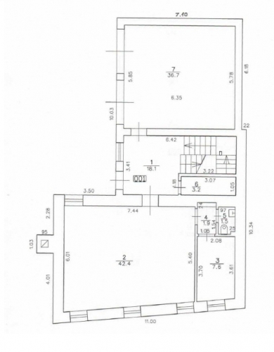
Telpas renovētā fasādes ēkā ar autostāvvietu. Veikals: Kopā 53,4 kvm - 7 eur/m2 - Tirdzniecibas telpa 42,4 kvm, - Noliktava - 7,6 kvm, - Wc un koridors - 2,4 kvm. Papildus, ja nepieciešams, blakus atrodās apsildāma garāža/noliktava 36,7 kv.m - 5 eur/m2 Telpu apraksts un priekšrocības: + Ļoti ērta atrašanās vieta tuvu Rīgas centram, + Blakus sabiedriskā transporta pieturām; + Pieejamas visas ērtības: ūdensvads, kanalizācija, elektrība, apkure (gāzes un granulu), optiskais internets; + Signalizācija + Video novērošanas sistēma + Pakešu logi + Sakopta un kārtīga vide ēkā un teritorijā + Autostāvvieta pagalmā; Zemas komunālās izmaksas.
Tālrunis:26722303E-mail:Adrese internetāSkatīšanas reizes:4 Tiek publicēts:29.12.2025. — 29.01.2026. Sludinājums tika pieņemts Internetā
Bez prioritātes Nav izcelts |








