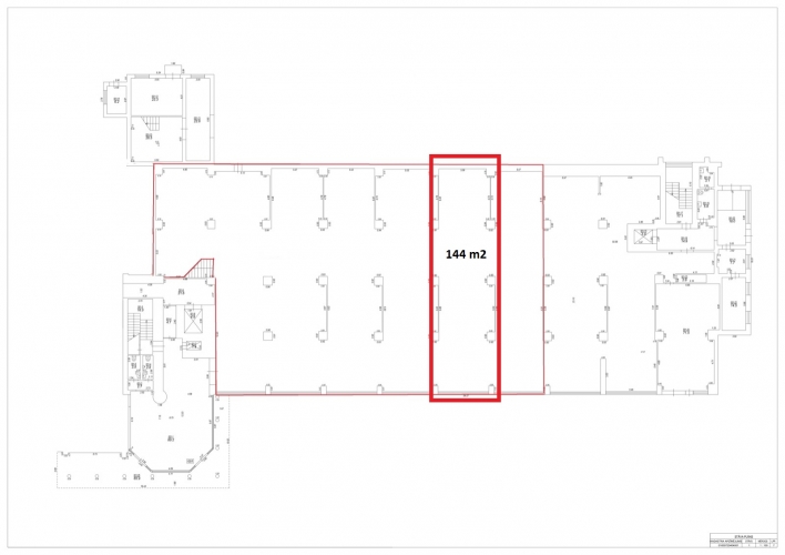
Piedāvājumā telpas Ķengaragā. + 1. stāvs. + Lieli skatlogi. + Nomniekam iespēja izbūvēt savu ieeju no fasādes. + Platība sastāv no atvērta telpas. + Ventilācija un kondicionieris. + WC koplietošanas koridorī. + Rampas. + Kravas lifts. (2mx3m 1 Tonna) + Pie ēkas bezmaksas autostāvvieta. + Granulu apkures katls. Papildus nomas maksai jāmaksā apsaimniekošanas maksa - 5 % no nomas maksas un komunālie maksājumi.
Tālrunis:25900100E-mail:Adrese internetāSkatīšanas reizes:1 Tiek publicēts:29.01.2024. — 30.01.2026. Sludinājums tika pieņemts Internetā
Bez prioritātes Nav izcelts |






