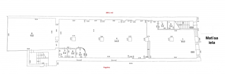
Telpas komercdarbībai ar kopējo platību 358 kv. m. Rīgas centrā. + Ērts plānojums ar skatlogiem uz aktīvo A. Čaka ielu. + telpas piemērotas veikala, bara, kafejnīcas ierīkošanai vai citai komercdarbībai; + liela elektrības jauda; + telpas aprīkotas ar ugunsdrošības un apsardzes signālizaciju, ventilāciju un kondicionieriem; + centralizēta gāzes apkure; Papildu maksājumi: apsaimniekošanas maksa . Telpas ir pieejamas uzreiz. * iespējams arī iegādāties blakus esošas telpas.
Tālrunis:26400759E-mail:Adrese internetāSkatīšanas reizes:7 Tiek publicēts:14.09.2022. — 22.05.2026. Sludinājums tika pieņemts Internetā
Bez prioritātes Nav izcelts |





