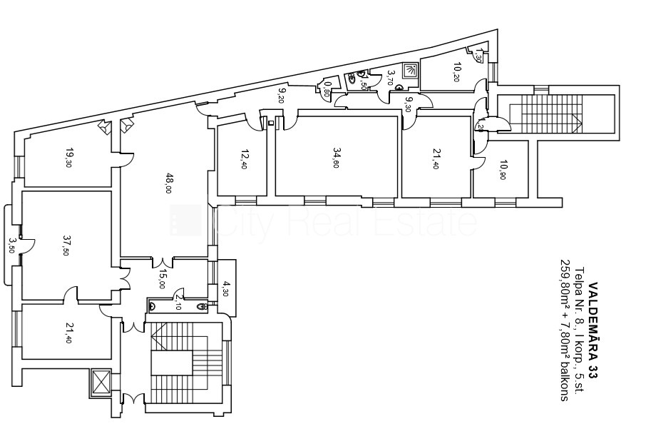
Fasādes māja, renovēta māja, labiekārtots apzaļumots pagalms, bruģēts piebraucamais ceļš, slēgts pagalms, teritorijas iebrauktuves vārti aprīkoti ar automatizētu atvēršanās un aizvēršanās sistēmu, apsargāta teritorija, ir lifts, balkons 7,8 m2, plašs skats no loga, istabas izolētas 2 gab., augstie griesti, mainīti radiatori, centrālā apkure, pilnā apdare, krāsotas sienas, mainīta santehnika, parketa grīda, jauna elektroinstalācija, mainīta kanalizācijas sistēma, sanitārais mezgls atsevišķs, biroja mēbeles, optiskais internets, signalizācija, diennakts videonovērošana, viedkaršu caurlaides sistēma, atbrīvots, līdz parkam 200 m, stratēģiski izdevīga vieta, līdz Vecrīgai 450 m, slēdzot nomas līgumu, Jums būs jāmaksā par pirmo nomas mēnesi, kā arī jāiemaksā drošības depozīts, CITY REAL ESTATE ID - 425998
Papildus informācija: http://www.cityreal.lv/nekustamais-ipasums/op/425998