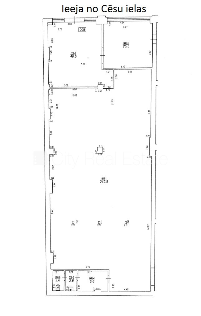
Fasādes māja, slēgts pagalms, vieta vairākām automašīnām, apsargāts pagalms, objektu apsargā fiziskā apsardze, logi vērsti uz ielas pusi, mājā pieslēgta 3 fāžu elektroenerģijas jauda, vairākas halles, augstie griesti, divas ieejas, centrālā apkure, lielie skatlogi, krāsotas sienas, betona grīdas segums, tualete, ir iespēja nomāt mazāku platību, teritorijā iespējams nomāt arī biroja telpas, diennakts apsardze, atbrīvots, slēdzot nomas līgumu, Jums būs jāmaksā par pirmo un par pēdējo nomas mēnesi , par cenu iespējams vienoties, CITY REAL ESTATE ID - 426567
Papildus informācija: http://www.cityreal.lv/nekustamais-ipasums/op/426567
























