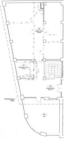
Gaišs birojs ar vienreizēju skatu uz Vecrīgas arhitektūru un Brīvības pieminekli. Lieliska atrašanās vieta viena no aktīvākajām cilvēku plūsmām ne tikai Vecrīgā, bet arī Rīgā! + Gaisa dzesēšanas sistēma; + Augstie griesti - 3.5m; + Optiskais internets. Plānojums plaša open space telpa, divas pārrunu telpas, co working telpa, ofisa telpa, atpūtas telpa, noliktavas telpa, 4 kabineti, kā arī virtuve un 4 tualetes. Iespējams nomāt daļu no biroja (~250 m2). Automašīnas iespējams novietot A zonā Aspazijas bulvārī, Vecrīgā R zonā, kā arī pazemes stāvvietā Jēkaba Arkādē. Apsaimniekošanas maksa: 1,82 EUR/m2 jeb 920 EUR/mēnesī. Tai skaitā: Pārvaldīšanas maksa: 380.00 EUR; Nekustamā īpašuma nodoklis: 474.99 EUR; Apdrošināšana: 43.56 EUR; Lifta izmantošana: 26.00 EUR. Atkritumu izvešana: (tiks precizēts pēc cilvēku skaita). Ja jūs interesē šis birojs, droši sazinieties, lai apspriestu turpmākos soļus un vienotos par apskati.
Tālrunis:26400759E-mail:Adrese internetāSkatīšanas reizes:5 Tiek publicēts:19.02.2025. — 22.05.2026. Sludinājums tika pieņemts Internetā
Bez prioritātes Nav izcelts |









