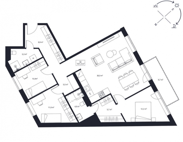
Miera iela 75 atrodas vienā no Rīgas mājīgākajiem rajoniem, piedāvājot labāko no abām pasaulēm: pilsētas ērtības un zaļu oāzi. + A klases energoefektivitāte; + Panorāmas skati; + Visi dzīvokļi ar balkoniem vai terasēm; + Griestu augstums: 2.8 m (standards), 2.9 m (7. stāvs); + Drošs, zaļš pagalms ar bērnu rotaļu laukumu. Pazemes autostāvvieta, pieci atšķirīgi ēku tipi un logi no grīdas līdz griestiem ir pārdomāti veidoti, lai maksimāli palielinātu skatu un dabisko apgaismojumu. Projekta pirmo posmu plānots pabeigt līdz 2027.gada 1.ceturksnim. No grīdas apsildes un individuālas ventilācijas līdz privātiem balkoniem un elegantām apdares detaļām katrs elements ir radīts jūsu komfortam un labsajūtai ilgtermiņā. Īpaša uzmanība pievērsta zaļajam iekšpagalmam ar balkoniem un terasēm, radot mājīgu, privātu oāzi pilsētas sirdī. Miera Rezidences apkārtnē ir kafejnīcas, dizaina veikali un kultūras telpas, kas veido pilsētas radošo pulsu, savukārt tuvumā esošās skolas, sporta iespējas un lieliska sabiedriskā transporta satiksme padara ikdienas dzīvi nepiespiesti raitu.
Tālrunis:27803354E-mail:Adrese internetāSkatīšanas reizes:7 Tiek publicēts:01.01.1970. — 22.05.2026. Sludinājums tika pieņemts Internetā
Bez prioritātes Nav izcelts |






