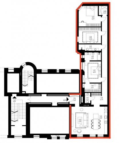
Elegants dzīvoklis "Šefela namā", Baznīcas ielā 5. Aicinām Jūs kļūt par daļu no Rīgas arhitektūras pērles Šefela nama! Šī šarmantā jūgendstila dzīvojamā ēka, celta 1907. gadā pēc ievērojamā arhitekta Frīdriha Šefela projekta, atrodas pašā Rīgas sirdī, netālu no Brīvības pieminekļa un Ministru kabineta. Dzīvokļa plānojums: + viesistaba apvienota ar virtuvi un skatu uz Baznīcas ielu; + saimnieku guļamistaba ar savu sanmezglu un garderobes telpu; + 2 izolētas guļamistabas; + sanmezgls ar dušu un tualeti; + viesu tualete. Par projektu: "Šefela nams" sastāv no divām ēkām fasādes un pagalma mājas. Fasādes ēka pieejami dzīvokļi no 50m līdz 140m , kas atšķiras pēc plānojuma un stila, taču tās vieno unikāls vēsturiskais šarms un centrālā atrašanās vieta. Pilnībā renovēts un modernizēts: Saglabātas vēsturiskās detaļas: oriģinālais koka parkets, grezni griestu ornamenti, logu vitrāžas un koka kāpņu margas. Jaunie īpašnieki var veikt dzīvokļu pārplānojumu, saglabājot autentisko atmosfēru. Labiekārtots un apzaļumots iekšpagalms ar soliņiem un velonovietni. Papildus iespējas: + Iespējams iegādāties mantu glabāšanas noliktavu. + Ēkas iedzīvotājiem būs pieejama koplietošanas veļas mazgātava (laundry room). Rezervācija: Pašlaik iespējams veikt rezervāciju veicot 20% pirmo iemaksu, nodrošinot vietu šajā ekskluzīvajā namā. "Šefela nams" apvieno vēsturisku eleganci ar modernām ērtībām un piedāvā lielisku iespēju radīt mājokli tieši tādu, kādu vēlaties, saglabājot autentiskās vēsturiskās vērtības. Ideāls investīciju objekts vai mājvieta tiem, kas novērtē Rīgas arhitektūras un vēstures mantojumu!
Tālrunis:25900100E-mail:Adrese internetāSkatīšanas reizes:1 Tiek publicēts:21.10.2024. — 30.01.2026. Sludinājums tika pieņemts Internetā
Bez prioritātes Nav izcelts |









