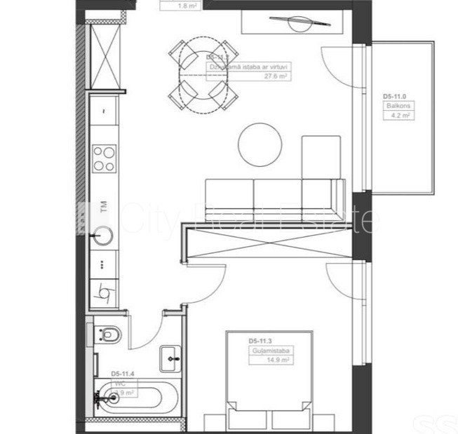
Jaunceltne, labiekārtota apzaļumota teritorija, vieta automašīnai, pazemes autostāvvieta, ir lifts, balkons, istabas izolētas 1 gab., studio tipa, virtuve apvienota ar viesistabu, augstie griesti, radiatori ar termoregulatoriem, automatizēta apkures sistēma, apkures skaitītāji, individuāla apkures sistēmas uzskaite, pilnā apdare, lielie skatlogi, parketa grīda, sanitārais mezgls apvienots, vanna, iebūvēta virtuves iekārta, iebūvēti sienas skapji, ledusskapis, trauku mazgājamā mašīna, indukcijas plīts, cepeškrāsns, tvaika nosūcējs, veļas mašīna, signalizācija, diennakts videonovērošana, kāpņu telpā koda atslēga, atbrīvots, stratēģiski izdevīga vieta, CITY REAL ESTATE ID - 516601
Papildus informācija: http://www.cityreal.lv/nekustamais-ipasums/op/516601


















